• 無錫市尚德干燥設備有限公司

    寵物食品蛋白加工工藝

    通過酶解、膨化、風干等技術實現蛋白質高效利用與營養保留,同時提升適口性、消化率及產品多樣性。

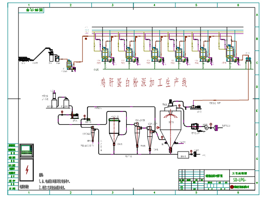
    • 1、原料輸送:將新鮮的雞鴨肝通過運輸車將雞鴨肝送入螺旋輸送機,螺旋輸送機將雞鴨肝送入1立方的中轉料倉;

    • 2、金屬檢測:在人工輔助下鋪設輸送履帶上約5-6cm,并裝配DK8S-L6508Z(寬幅)刀口皮帶金屬檢測機,該設備起到了對骨泥磨良好的保護,防止金屬物損傷設備;

    • 3、原料研磨:通過帶格柵的爬坡皮帶輸送機,將雞鴨肝送入中轉料倉星型卸料閥平穩將原料喂入骨泥磨。骨泥磨將新鮮的雞(鴨)肝加工成泥狀,

    • 4、酶解均質:通過螺桿泵輸送至酶解罐中進行酶解,酶解罐通過蒸汽夾層(或蒸汽直通)30-45分鐘升溫至50-60攝氏度,經過90-180分鐘(根據終端需要時長)酶解之后再進行90攝氏度滅酶并蒸煮,通過剪切泵對酶解蒸煮的雞(鴨)肝漿進行剪切均質,有效防止后端堵塞管道或者堵塞霧化器分流盤。

    • 5、干燥工藝:通過剪切泵均質剪切好的雞鴨肝漿液泵送至離心噴霧干燥設備,通過天然氣直接熱風爐將自然空氣加熱至180-200℃,熱空氣與高速離心霧化器霧化的微米級漿料霧滴充分接觸,水分瞬間蒸發,生產出雞肝粉。

                                               


    www.ganbbb.com